--   |  设为首页

帮忙装修网

中山

[切换]

带露台152平现代风格三房二厅装修效果图,中山新房装修参考案例

来自:中山帮忙装修网 日期:2019-02-26 17:46:57 14023 次 分享到:
导读:
很多人喜欢现代风格,时尚大气。三房二厅是大众户型,怎么样把三房二厅装修成时尚大气的现代风呢,下面,中山装修公司帮忙装修网分享一套三居现代装修风格供大家参考。

其实并不需要大刀阔斧地改造生活空间,只要抓住简约的特点,从小细节入手,分分钟就能打造出理想风格的家。

面积:152㎡

户型:三居

风格:现代

设计:陈放设计

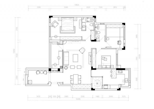
平面图:

▲入户门左手是露台入口,右边通往客厅。

▲入户露台设计了大面积的玻璃门窗,把自然光线引入室内,黑色框架平衡了浅色空间的调性。

▲客厅是简洁主义为核心的理念加上流行的元素,无论是空间的线条感,还是整体的色彩,都尽量做到“不抢”。

▲正是因为这种独特的设计理念,各种不同材质不同颜色的物品能够和谐地相处于同一个空间。

▲电视背景墙面的个性墙饰,也是点到即止。

▲在灰白的空间里适当加入了黑色线条,跳跃的红色块,清新的浅色木面。一点点鲜亮的颜色,带来一丝明艳。

▲极其纤细有质感的家具,比如纯白色细框架的椅子,在空间中更能营造出通透明亮的感觉。

▲白色铁艺的椅子,全部都由线条构成,尽可能地让空间变得“轻盈”。

▲从客厅去阳台,推开两扇门即是书房,光和风在瞬间流泻进来。

▲黑板漆的设计是方便小家伙写写画画。

▲书架采用完全开放的形式,木头温暖的质感在阳光下显得非常自然亲切。

▲餐厅,黑色极简吊灯,灰蓝和白色的椅子,都是尽可能的减轻体积感。

▲纯白色的柜门和砖墙,看似简单的组合,却让整个墙面有分割和材质的变化,透着随性的惬意。

▲厨房门也同样采用了铁艺玻璃双扇平开门,同样在尽可能做减法。

▲厨房主要的色调就是黑白灰,加上灯光的烘托,营造出不一样的生活质感。

▲绿植和木色橙色的厨具,看起来漫不经心地摆放,也能够让本来略显冰冷的空间十分接地气。

▲厨房侧面的柜子采用了深色柚木面定制,不会太闷,又可以让厨房的气质暖和些。

▲主卧以柔和清新的色调为主,布艺材质偏软、轻,金属饰品偏硬、暗。

▲为了强调线条感,床头是线装交叉的结构。

▲衣柜门更是在大面积白色调的基础上,采用了纵向多段平行线去分割。

▲次卧,棉麻的布艺和木色的家具,是最温暖闲适的搭配了吧。

▲儿童房里小家伙最喜欢在宽阔的地台上玩耍,大窗户外的绿植配以木色书桌也给小房间带来无限生机。

▲多彩的格子饱和度较高,摆上小家伙心爱的玩具,随用随取特别方便。

▲主卫空间透着股干净凌冽的酷劲,椭圆形的独立浴缸一侧设计了壁龛,不仅可以增加收纳空间,也显得很有格调。

▲次卫整体色调搭配比较直接粗放,透着随性。黄铜色的镜子稍稍带一些雕纹,体现一种低调的奢华感。

以上就是中山装修公司帮忙装修网分享的带露台的三房二厅现代风格装修案例,希望大家喜欢。

中山装修公司哪家好?中山新房装修要找靠谱的装修公司就上中山帮忙装修网,免费获得三家本地优秀装修公司量房、设计、报价,对比之后再装修。点击免费发布招标。

或拨打免费热线:13822775923

已成功招标53523